Menu

REX_2050 M Street_Washington, District of Columbia_credit Iwan Baan

2050 M STREET
Washington, DC

AWARDS American Institute of Architects New York (AIA NY), Honor Award, 2023; Council on Tall Buildings & Urban Habitat (CBTUH), Award of Excellence, 2023; Mies Crown Hall Americas Prize (MCHAP), Outstanding Project, 2022; Architectural Record, Top 10 Projects, 2021; American Council of Engineering Companies New York (ACEC NY), Platinum Award, 2020; Global Architecture & Design Awards, Runner-up, 2018; World Architecture News, WAN Awards, Shortlist, 2018; MIPIM / Architectural Review, Future Project Award, 2016
CLIENT Tishman Speyer
PROGRAM Premium office building in Washington, DC’s Golden Triangle business district, hosting CBS’s Washington Bureau (including television studios), amongst other tenants
AREA 41,800 m² (450,000 sf)
SUSTAINABILITY LEED Gold
COST US$90.7 million
STATUS Completed 2020
DESIGN ARCHITECT REX
PERSONNEL Timothy Burwell, Adam Chizmar, Maur Dessauvage, Kelvin Ho, James Kehl, Elizabeth Nichols, Joshua Ramus, Matthew Uselman (PL), Cristina Webb (PL), Vaidotas Vaiciulis, Michael Volk
EXECUTIVE ARCHITECT Kendall/Heaton
CONSULTANTS Arup, Baumann, Blades, Cerami, ECS, Front, Janson Tsai, Left Bank, LERA, LSM, Richter, George Sexton, Walker, Wiles Mensch, WSP
CONTRACTOR Davis

2050 M Street REX 1904

02_151013_Precedent Quad_option 6

Washington, DC’s building stock is largely composed of two typologies: heavy masonry or concrete buildings with high-relief facades and punched windows—in the Beaux Arts, Neoclassical, Art Deco, and Brutalist styles— …

REX_M Street_04_Precedent 1050 K St

… or modern structures with taut glass envelopes, many with applied external decorative treatments.

1464711158-huge-2250x1500

Because DC’s strict zoning code effectively dictates building heights and massing, the two typologies match in scale, but are aesthetically unreconciled.

2050 M Street REX 5908_credit Iwan Baan

In this constrained context, 2050 M Street leverages its façade—the building’s key design opportunity—to set the new standard for trophy office space within the DC market.

2050 M Street REX 1421_CROP 2

Its curtain wall provides the leasing ideal of hyper-transparent, floor-to-ceiling glass   …

2050 M Street REX 6174

… without any view-impeding mullions.

2050 M Street REX 1450_credit Iwan Baan

The unique glass also creates a new architectural paradigm in DC, one which combines the advantages of an all-glass building with the modulation of a high-relief façade befitting its context.

2050 M Street REX 5945

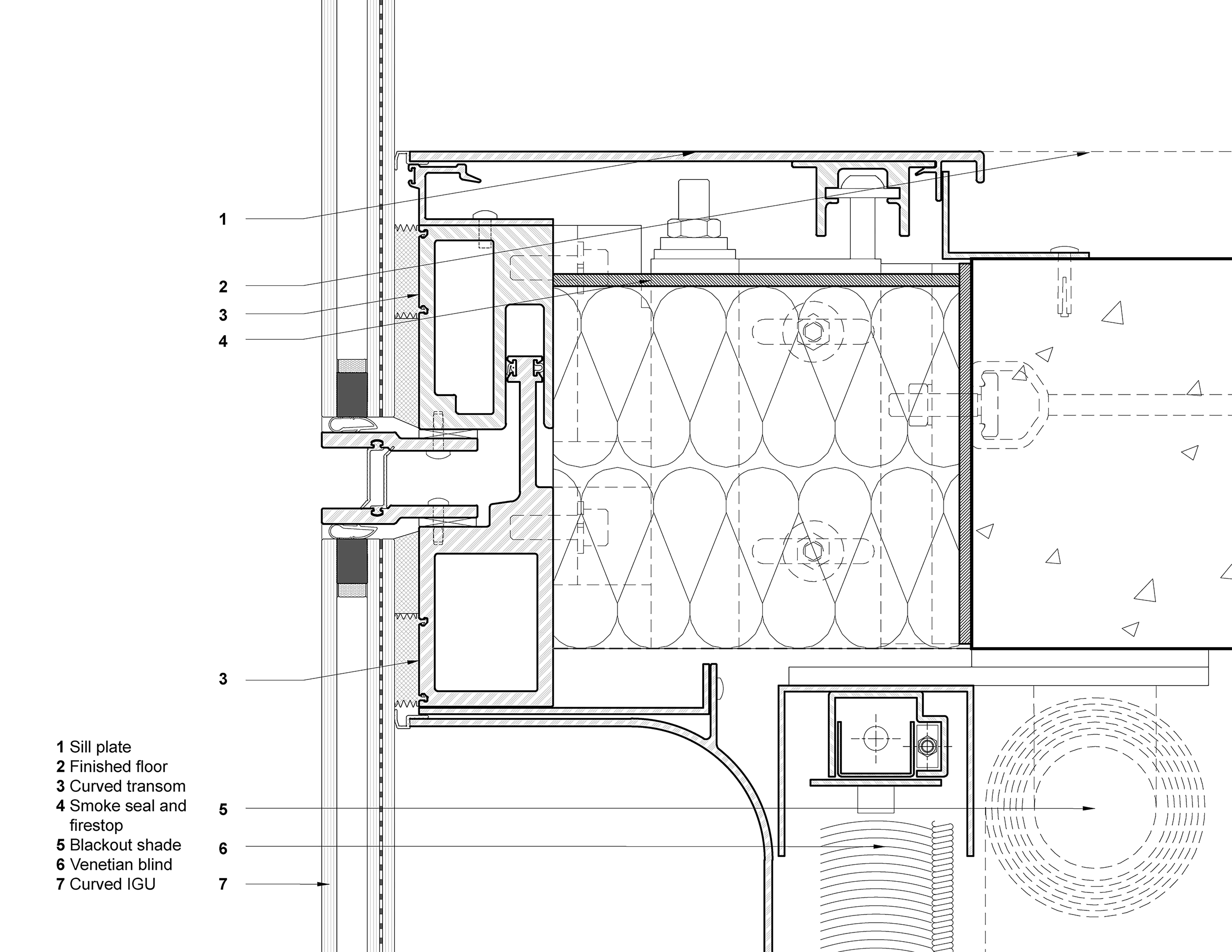
The façade’s 978 identical, insulated-glass panels—3.4 m tall by 1.5 m wide (11’-3” tall by 5’ wide)—are subtly curved to a 2.9 m (9’-6”) radius using a bending tempering furnace, which heats and curves flat glass like a sushi rolling mat with geometric precision and no distortion.

2050 M Street REX 6052_credit Iwan Baan

The inherent rigidity of the curved glass eliminates the need for structural mullions—leaving only a minimalist unitized frame which improves sightlines and increases usable floor area—and reduces the thickness of the monolithic outer lite—providing greater transparency.

Plan Detail_rev

Curtain wall plan detail

Section Detail

Curtain wall section detail

2050 M Street REX 1407_CROP

To emphasize the ethereal lightness of the skin, all perimeter columns are pulled 3.8 m (12.5’) in from the façade, and the ceiling is tapered to the depth of the 20 cm (8”) pre-tensioned structural slab as it approaches the exterior.

2050 M Street REX 2647-Pano_credit Iwan Baan

A subtly reflective pyrolytic coating on the glass’s exterior and a high-performance low-E coating applied within the glass’s insulating cavity reduce solar heat gain and meet thermal performance requirements. Paired with the fluted panels, they create an unusual kaleidoscopic effect of repetitive transparency and reflection that simultaneously animates and dematerializes the façade.

2050 M Street REX 2351_credit Iwan Baan REDUCED

As a counterpoint to the crystalline façade, the lobby is an oasis of graphically veined, warm-colored Onice Bella Rosa onyx, and sapele mahogany floors and ceilings whose rich color, thin plank width, and high polish evoke yacht decks. The onyx panels’ dimensions and bookmatching are a playful nod to the stone treatment of modernist lobbies.

 

2050 M Street REX 2324_credit Iwan Baan

Detail of lobby finishes

2050-M-Street-REX_Mock-up-11-1406x1406

Close-up of lobby onyx

2050 M Street REX 2285

Elevator lobby and cab interior

2050 M Street REX 2867-Pano

The entry vestibule is enlarged to form a publicly accessible gallery for a Tara Donovan sculpture composed of thousands of acrylic rods.

2050 M Street REX 1898

Moving further into the building, the fluted geometry of the facade …

2050 M Street REX 6163

… is carried into floor treatments …

2050 M Street REX 6279

… and the sinks and walls of the lavatories.

2050 M Street REX 1385

Image credits: 1, 2, 6, 7, 8, 9, 10, 13, 14, 15, 16, 18, 19, 20, 21, 22, 23: Iwan Baan; 4: Google Earth, architecture by Hickok Cole Architects

(/)   Prev / Next