Menu

01

YONGSAN EXPERIMENT
Seoul, South Korea

CLIENT Dreamhub Project Financial Investment Company
PROGRAM Cultural node—including art center, arts magnet school, broadcasting studio, congress center, museum, and performing arts theater —within a 2.2 million m² (24 million sf) master plan designed by SOM and Field Operations, on the waterfront of the Han River
AREA 59,800 m² (642,000 sf)
STATUS Limited competition 2008
ARCHITECT REX
PERSONNEL Jeffrey Franklin, Javier Haddad, David Menicovich, Joshua Ramus, Eugenia Zimmermann
CONSULTANTS Buro Happold

02

SOM and Field Operations’ Master Plan for the Yongsan Economic Zone proposes a centralized, cultural node that complements the draw and mass of SOM’s Yongsan Landmark Tower. By balancing the Landmark Tower on one side with cultural programs on the other, the matrix of office and residential buildings is energized between commercial and cultural poles. REX was tasked with designing all the cultural venues, and in only two weeks.

03

As individual elements—including an art center, an arts magnet school, a broadcasting studio, a congress center, a museum, and a performing arts theater—the cultural programs are too small to generate critical mass; a field of cultural “confetti” hardly constitutes a node.

04

REX’s response therefore combines the cultural projects into a powerful, synergistic element: a Tower of Culture.

05

It would be inappropriate for a single architect to design every cultural institution for an urban development of 2.2 million m² (23.6 million sf). Design beyond a certain scale thrives on—if not outright demands—multiple authorship and expertise. The single-authored alternative all too often yields oppressive homogeneity.

REX therefore determined the Tower of Culture’s concept, infrastructure, and overarching iconography, but in the interests of genuine multiple-authorship, required each cultural component to be designed by other architects.

06

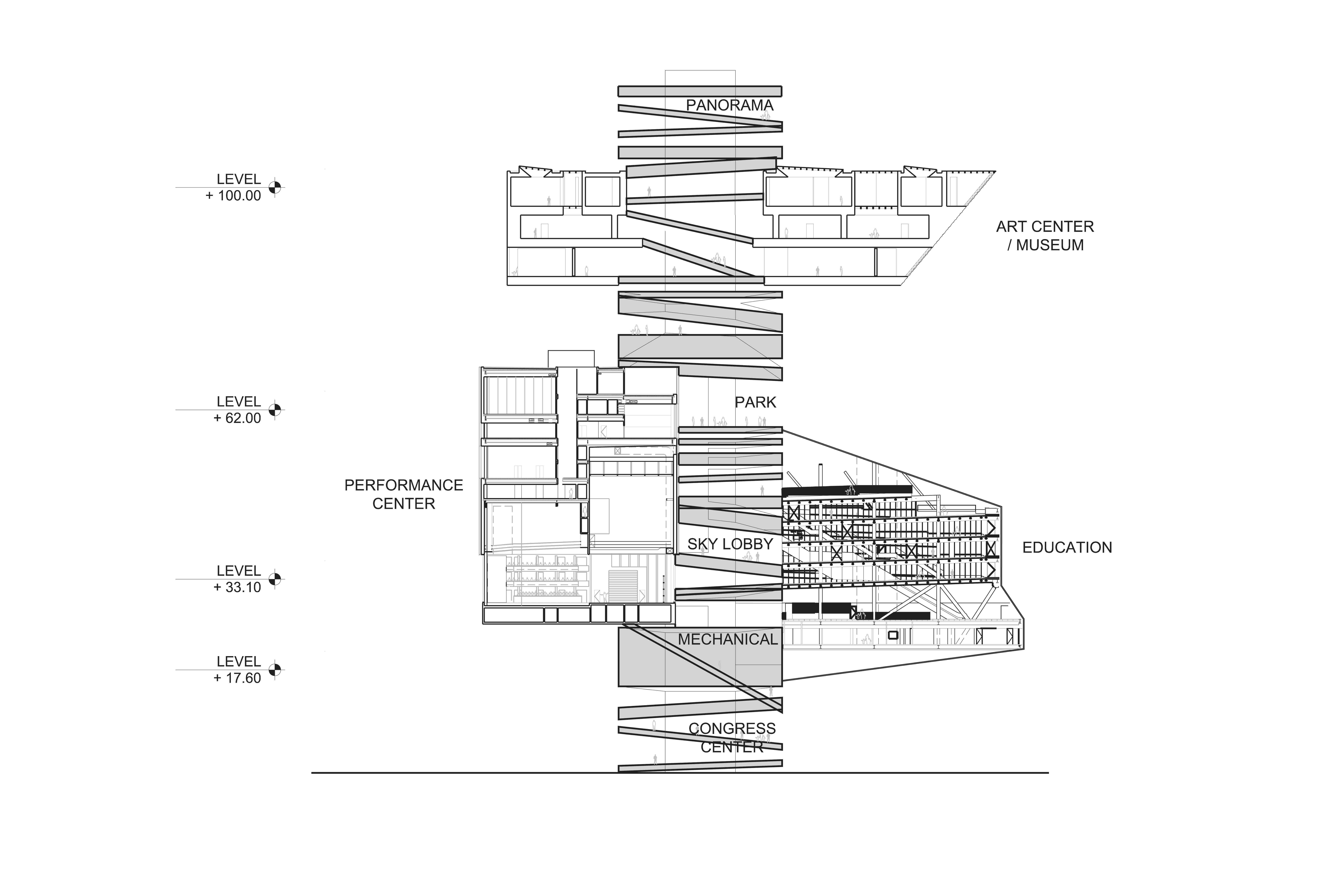
Of the cultural programs, REX “designed” the arts magnet school and congress center to provide the backbone for the Tower itself. Elevators, fire stairs, and MEP risers form the Tower of Culture’s three structural cores. A “waterfall” of structural plates forms the auditoria of the arts magnet school and the congress center, while also serving as a spiral of slow, meandering circulation.

07

The remaining programs form barnacles to be designed by other architects …

08-2

The remaining programs form barnacles to be designed by other architects …

09

To respect the intellectual property rights of other architects, REX used several of its own designs as barnacle placeholders—namely, the Kunsthaus Zürich, the Dee and Charles Wyly Theatre, the Vakko Headquarters, and the Seattle Central Library.

10

To respect the intellectual property rights of other architects, REX used several of its own designs as barnacle placeholders—namely, the Kunsthaus Zürich, the Dee and Charles Wyly Theatre, the Vakko Headquarters, and the Seattle Central Library.

11

The Tower of Culture’s infrastructure and overarching iconography is maintained—as is the cultural node’s critical mass—regardless of what cultural programs (or their architects) are ultimately chosen.

12

Images credits: 1: by-encore; 11, 12: MIR

(/)   Prev / Next